Каркасный дом под ключ
135 м²
Преображенский
Преображенский – ПРОЕКТ КАРКАСНОГО ДОМА
1 этаж
2
133 м²
Количество этажей
Кол-во спален
Общая жилая площадь
Одноэтажный каркасный дом с террасой «Елисей». Готовый проект под ключ
Проект «Елисей» это одноэтажный каркасный дом полной готовности: в проекте уже заложены
все помещения для комфортной жизни, включая сауну и большую веранду.
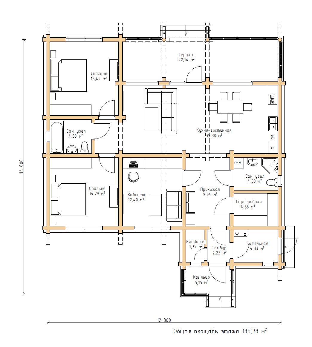
Среди типовых проектов одноэтажных каркасных домов эта планировка выгодно отличается своей комплексностью: для семьи: 3 комнаты (кухня-гостиная, спальня, детская). Для комфорта: большой санузел с местом под сауну, просторный гардероб, прихожая с тамбуром. Для отдыха: застекленная веранда (терраса) и большое крыльцо. Для удобства: отдельное техническое помещение.
Этот одноэтажный каркасный дом для проживания создан, чтобы сразу заселиться и наслаждаться жизнью. Каркасная технология обеспечивает быстрое строительство и низкие затраты на отопление, что делает проект не только комфортным, но и экономически выгодным решением.
Проект «Елисей» это одноэтажный каркасный дом полной готовности: в проекте уже заложены
все помещения для комфортной жизни, включая сауну и большую веранду.
Среди типовых проектов одноэтажных каркасных домов эта планировка выгодно отличается своей комплексностью: для семьи: 3 комнаты (кухня-гостиная, спальня, детская). Для комфорта: большой санузел с местом под сауну, просторный гардероб, прихожая с тамбуром. Для отдыха: застекленная веранда (терраса) и большое крыльцо. Для удобства: отдельное техническое помещение.
Этот одноэтажный каркасный дом для проживания создан, чтобы сразу заселиться и наслаждаться жизнью. Каркасная технология обеспечивает быстрое строительство и низкие затраты на отопление, что делает проект не только комфортным, но и экономически выгодным решением.
О ПРОЕКТЕ
Анна Светлова
Архитектор проекта
А давайте создадим индивидуальные планировки на основе ваших пожеланий?
Назначьте встречу с одним из наших архитекторов прямо сейчас
Назначьте встречу с одним из наших архитекторов прямо сейчас
Не подходит планировка дома?
ПЛАНИРОВОЧНЫЕ РЕШЕНИЯ ПРОЕКТА
ПЛАНИРОВОЧНЫЕ РЕШЕНИЯ ПРОЕКТА
КАК ВЫГЛЯДЯТ УЖЕ ПОСТРОЕННЫЕ ДОМА?
Имитация бруса / гипсокартон
Электрика, вода, канализация, отопление (электрические конвекторы), вентиляция (санузел, кухня)
Кварцвинил, монтаж плинтусов
Имитация бруса под покраску / стеновые панели / обои
Монтаж натяжных потолков под ключ
Фанера
ПВХ профиль 70, двойной стеклопакет
Пол, стены, потолок
Ветро-влагозащита, контробрешетка, шаговая обрешетка, кровельное покрытие металлочерепица
Каркас, супердиффузионная мембрана, сетка от грызунов
Железобетонные сваи
(цоколь, фасад, лобовые, доборные элементы, водосточная система, подшив, снегоудержание, откосы, отливы, наличники, крыльца, террасы)
| Фундамент | |
| Возведение конструкции | |
| Перекрытие пола | |
| Перекрытие потолка | |
| Стропильная система | |
| Кровля под ключ | |
| Утепление конструктива | |
| Окна, входная дверь | |
| Черновая отделка пола | |
| Внешняя отделка | |
| Внутренняя отделка стен | |
| Инженерные сети | |
| Финишное покрытие пола | |
| Финишное покрытие стен | |
| Финишное покрытие потолка | |
КОМПЛЕКТАЦИИ ДОМА
| «Холодный контур» | «Теплый контур» | «White Box» | «Под ключ» |
|---|---|---|---|
| | |||
| | |||
| | |||
| | | ||
| | | ||
| | | | |
| | | | |
| | | | |
| | | | |
| Цена: 3,54 млн. руб. | Цена: 5,90 млн. руб. | Цена: 8,25 млн. руб. | Цена: 10,15 млн. руб. |
КОМПЛЕКТАЦИИ ДОМА
ПОЛУЧИТЕ БЕСПЛАТНУЮ КОНСУЛЬТАЦИЮ
ОТ ЭКСПЕРТА ПО СТРОИТЕЛЬСТВУ
ОТ ЭКСПЕРТА ПО СТРОИТЕЛЬСТВУ
ВАРИАНТЫ ВНУТРЕННЕЙ ОТДЕЛКИ ДОМА
*Доступно более 34 вариантов внутренней отделки. Подберем ту конфигурацию, которая понравится вам и вашей семье
от 3-х месяцев
10 лет
10 лет
12 лет
12 лет
от 3-х месяцев
Срок строительства под ключ
Официальной гарантии
Официальной гарантии
На рынке строительства домов
На рынке строительства домов
Срок строительства под ключ
В ЦИФРАХ:
О КОМПАНИИ
О КОМПАНИИ В ЦИФРАХ:
ООО «СТРОИМ»
ОГРН: 1253700008836
ИНН: 3700035290
КПП: 370001001
ОГРН: 1253700008836
ИНН: 3700035290
КПП: 370001001
Работаем сейчас, звоните
Любая информация, представленная на данном сайте, носит исключительно информационный характер и ни при каких условиях не является публичной офертой, определяемой положениями статьи 437 ГК РФ.
Отправляя сведения через любую электронную форму на этом сайте,
вы даете согласие на обработку ваших персональных данных.
Отправляя сведения через любую электронную форму на этом сайте,
вы даете согласие на обработку ваших персональных данных.
© 2026. Все права защищены.
© 2026. Все права защищены.
Любая информация, представленная на данном сайте, носит исключительно
информационный характер и ни при каких условиях не является публичной офертой, определяемой положениями статьи 437 ГК РФ.
Отправляя сведения через любую электронную форму на этом сайте,
вы даете согласие на обработку ваших персональных данных.
информационный характер и ни при каких условиях не является публичной офертой, определяемой положениями статьи 437 ГК РФ.
Отправляя сведения через любую электронную форму на этом сайте,
вы даете согласие на обработку ваших персональных данных.
|
Работаем сейчас, звоните