Каркасная баня под ключ
49 м²
БАНЯ
гости
гости
ГОСТИ – ПРОЕКТ КАРКАСНОЙ БАНИ
1 этаж
1
49 м²
Количество этажей
Кол-во комнат отдыха
Общая жилая площадь
«Гости» - Одноэтажная каркасная баня или гостевой дом. Готовый проект под ключ.
Проект одноэтажной каркасной бани или гостевого дома «Гости» - это душевный уголок для отдыха от ежедневной суеты площадью в 49 м². Эта баня идеально подходит для релакса и восстановления сил, а также может служить гостевым домом для ваших друзей и близких, которые приехали к вам именно погостить.
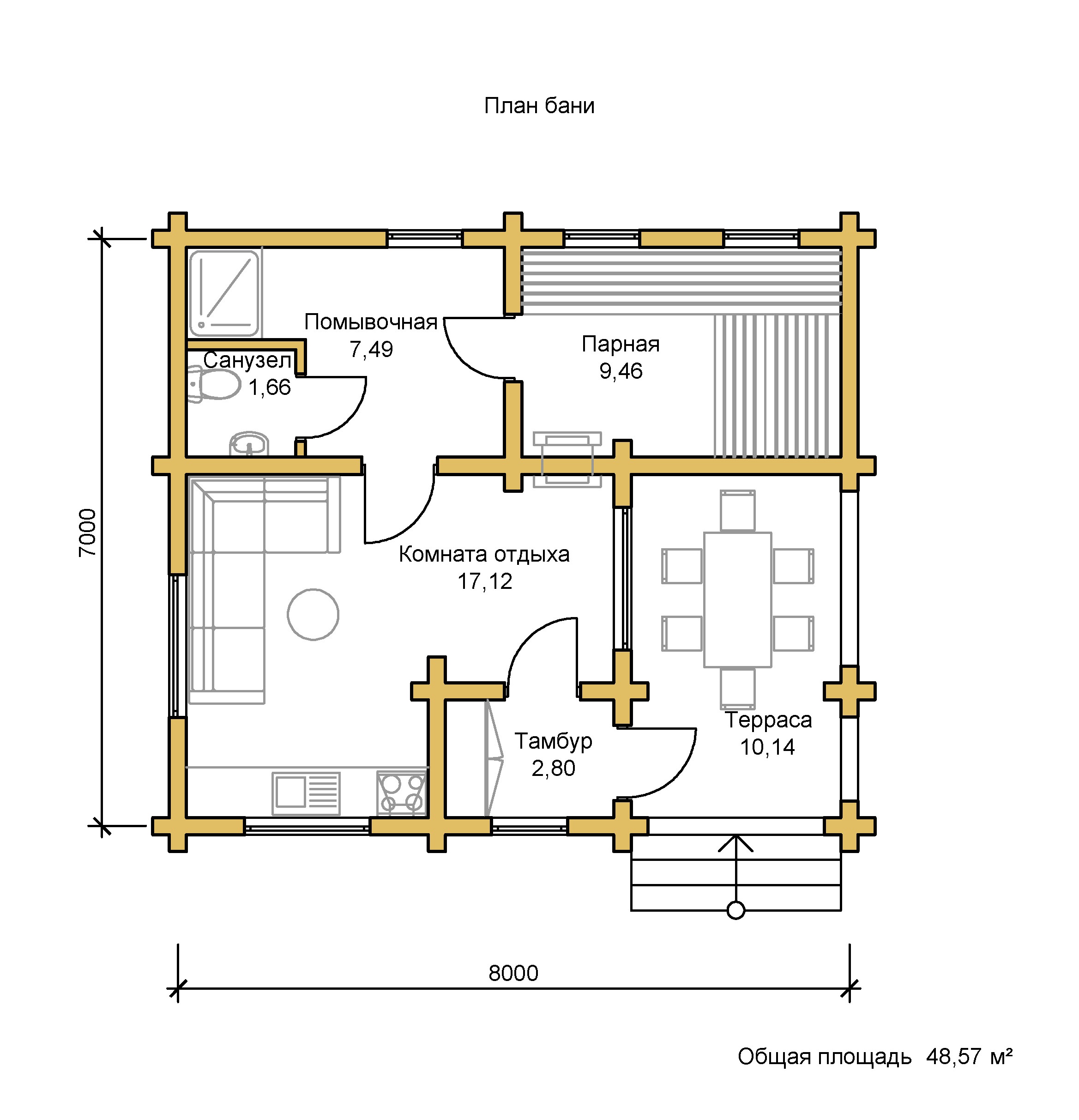
В центре проекта расположена большая комната отдыха с огромными окнами, создающими ощущение единства с природой и окружающим ландшафтом. Здесь можно провести время в компании близких, наслаждаясь великолепными видами и уютной атмосферой за чашечкой ароматного чая. Парная площадью около 10 м² станет источником здоровья и бодрости. Уютное пространство для парения и общения большой компании, что подарит незабываемые позитивные моменты отдыха. Также здесь предусмотрены помывочная и отдельный изолированный санузел для удобства после сеансов в парной, а открытая терраса— станет идеальным местом для наслаждения свежим воздухом и красивыми пейзажами, где можно устроить вечерние посиделки или просто расслабиться за чтением любимой книги.
Проект одноэтажной каркасной бани или гостевого дома «Гости» — это не только место для жарких процедур, но и пространство для спокойствия и гармонии, которое станет отличным дополнением к вашему загородному участку.
Проект одноэтажной каркасной бани или гостевого дома «Гости» - это душевный уголок для отдыха от ежедневной суеты площадью в 49 м². Эта баня идеально подходит для релакса и восстановления сил, а также может служить гостевым домом для ваших друзей и близких, которые приехали к вам именно погостить.
В центре проекта расположена большая комната отдыха с огромными окнами, создающими ощущение единства с природой и окружающим ландшафтом. Здесь можно провести время в компании близких, наслаждаясь великолепными видами и уютной атмосферой за чашечкой ароматного чая. Парная площадью около 10 м² станет источником здоровья и бодрости. Уютное пространство для парения и общения большой компании, что подарит незабываемые позитивные моменты отдыха. Также здесь предусмотрены помывочная и отдельный изолированный санузел для удобства после сеансов в парной, а открытая терраса— станет идеальным местом для наслаждения свежим воздухом и красивыми пейзажами, где можно устроить вечерние посиделки или просто расслабиться за чтением любимой книги.
Проект одноэтажной каркасной бани или гостевого дома «Гости» — это не только место для жарких процедур, но и пространство для спокойствия и гармонии, которое станет отличным дополнением к вашему загородному участку.
О ПРОЕКТЕ
Анна Светлова
Архитектор проекта
А давайте создадим индивидуальные планировки на основе ваших пожеланий?
Назначьте встречу с одним из наших архитекторов прямо сейчас
Назначьте встречу с одним из наших архитекторов прямо сейчас
Не подходит планировка бани?
ПЛАНИРОВОЧНЫЕ РЕШЕНИЯ ПРОЕКТА
ПЛАНИРОВОЧНЫЕ РЕШЕНИЯ ПРОЕКТА
Имитация бруса / гипсокартон
Электрика, вода, канализация, отопление (электрические конвекторы), вентиляция (санузел, кухня)
Кварцвинил, монтаж плинтусов
Имитация бруса под покраску / стеновые панели / обои
Монтаж натяжных потолков под ключ
Фанера
ПВХ профиль 70, двойной стеклопакет
Пол, стены, потолок
Ветро-влагозащита, контробрешетка, шаговая обрешетка, кровельное покрытие металлочерепица
Каркас, супердиффузионная мембрана, сетка от грызунов
Железобетонные сваи
(цоколь, фасад, лобовые, доборные элементы, водосточная система, подшив, снегоудержание, откосы, отливы, наличники, крыльца, террасы)
| Фундамент | |
| Возведение конструкции | |
| Перекрытие пола | |
| Перекрытие потолка | |
| Стропильная система | |
| Кровля под ключ | |
| Утепление конструктива | |
| Окна, входная дверь | |
| Черновая отделка пола | |
| Внешняя отделка | |
| Внутренняя отделка стен | |
| Инженерные сети | |
| Финишное покрытие пола | |
| Финишное покрытие стен | |
| Финишное покрытие потолка | |
КОМПЛЕКТАЦИИ БАНИ
| «Холодный контур» | «Теплый контур» | «White Box» | «Под ключ» |
|---|---|---|---|
| | |||
| | |||
| | |||
| | | ||
| | | ||
| | | | |
| | | | |
| | | | |
| | | | |
| Цена: 1,27 млн. руб. | Цена: 2,13 млн. руб. | Цена: 2,98 млн. руб. | Цена: 3,66 млн. руб. |
КОМПЛЕКТАЦИИ БАНИ
ПОЛУЧИТЕ БЕСПЛАТНУЮ КОНСУЛЬТАЦИЮ
ОТ ЭКСПЕРТА ПО СТРОИТЕЛЬСТВУ
ОТ ЭКСПЕРТА ПО СТРОИТЕЛЬСТВУ
ВАРИАНТЫ ВНУТРЕННЕЙ ОТДЕЛКИ БАНИ
*Доступно более 34 вариантов внутренней отделки. Подберем ту конфигурацию, которая понравится вам и вашей семье
от 3-х месяцев
10 лет
10 лет
12 лет
12 лет
от 3-х месяцев
Срок строительства под ключ
Официальной гарантии
Официальной гарантии
На рынке строительства домов
На рынке строительства домов
Срок строительства под ключ
В ЦИФРАХ:
О КОМПАНИИ
О КОМПАНИИ В ЦИФРАХ:
ООО «СТРОИМ»
ОГРН: 1253700008836
ИНН: 3700035290
КПП: 370001001
ОГРН: 1253700008836
ИНН: 3700035290
КПП: 370001001
Работаем сейчас, звоните
Любая информация, представленная на данном сайте, носит исключительно информационный характер и ни при каких условиях не является публичной офертой, определяемой положениями статьи 437 ГК РФ.
Отправляя сведения через любую электронную форму на этом сайте,
вы даете согласие на обработку ваших персональных данных.
Отправляя сведения через любую электронную форму на этом сайте,
вы даете согласие на обработку ваших персональных данных.
© 2026. Все права защищены.
© 2026. Все права защищены.
Любая информация, представленная на данном сайте, носит исключительно
информационный характер и ни при каких условиях не является публичной офертой, определяемой положениями статьи 437 ГК РФ.
Отправляя сведения через любую электронную форму на этом сайте,
вы даете согласие на обработку ваших персональных данных.
информационный характер и ни при каких условиях не является публичной офертой, определяемой положениями статьи 437 ГК РФ.
Отправляя сведения через любую электронную форму на этом сайте,
вы даете согласие на обработку ваших персональных данных.
|
Работаем сейчас, звоните