Каркасный дом под ключ
240 м²
ЭЛЬЗА
ЭЛЬЗА – ПРОЕКТ КАРКАСНОГО ДОМА
2 этажа
4
135 м²
Количество этажей
Кол-во спален
Общая жилая площадь
«Эльза» - Двухэтажный каркасный дом с четырьмя просторными спальнями. Готовый проект под ключ.
Проект двухэтажного каркасного дома «Эльза» – это изящный и стильный двухэтажный каркасный дом общей площадью 242 м² обещает стать идеальной резиденцией для активной и творческой семьи, предпочитающей комфорт, свободу и природный ландшафт.
При входе в дом вас встречает удобная прихожая, которая плавно вписывается в общий интерьер. Сразу ощущается атмосфера тепла и приветствия. Из прихожей вы попадаете в просторную гостиную, где огромные окна наполняют пространство естественным светом и открывают прекрасные виды на окружающий ландшафт. Эта комната становится центром семейных встреч и торжеств, предоставляя достаточно места для комфортного отдыха и общения.
Гостиная плавно переходит в большую кухню с отдельной столовой зоной, где каждый ужин превращается в настоящее событие. Просторная кухня оборудована всем необходимым для приготовления кулинарных шедевров, а обеденная зона становится местом, где собирается вся семья, делясь историями и смехом. Из столовой зоны предусмотрен выход на уютное патио, где можно наслаждаться свежим воздухом, проводить вечера с друзьями или устраивать барбекю.
На первом этаже также расположена гостевая спальня, что делает дом удобным для приема гостей. Рядом с ней находится отдельный санузел, обеспечивающий комфорт и приватность для ваших друзей и родственников. Плюсом является помещение котельной с отдельным входом через крыльцо, что делает управление домом более удобным и практичным.
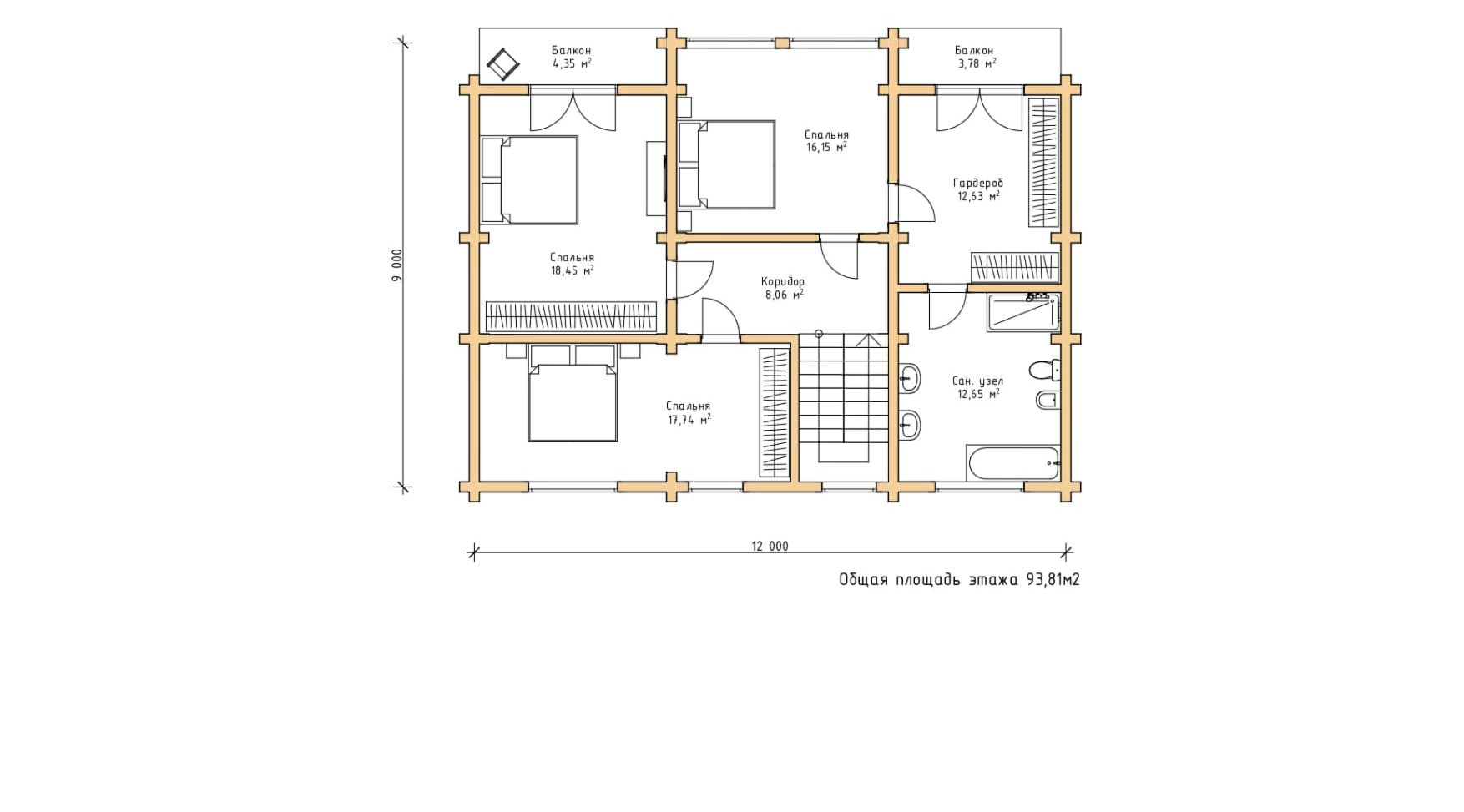
Поднимаясь на второй этаж, вы попадаете в шикарную мастер спальню, которая стала оазисом уюта и спокойствия. Эта спальня оборудована собственной гардеробной и большим санузлом, а также имеет выход на балкон, где можно наслаждаться утренним кофе или вечерними закатами. Кроме того, на этаже расположены две просторные спальни для детей или гостей, каждая из которых предлагает комфортные условия для отдыха и учебы.
Проект двухэтажного каркасного дома «Эльза» — это не просто строение, а пространство, где каждая деталь продумана для создания уюта и гармонии. Он станет идеальным местом для большой семьи, обеспечивая комфорт, стиль и функциональность, что делает его настоящим домом для счастливых моментов и воспоминаний.
Проект двухэтажного каркасного дома «Эльза» – это изящный и стильный двухэтажный каркасный дом общей площадью 242 м² обещает стать идеальной резиденцией для активной и творческой семьи, предпочитающей комфорт, свободу и природный ландшафт.
При входе в дом вас встречает удобная прихожая, которая плавно вписывается в общий интерьер. Сразу ощущается атмосфера тепла и приветствия. Из прихожей вы попадаете в просторную гостиную, где огромные окна наполняют пространство естественным светом и открывают прекрасные виды на окружающий ландшафт. Эта комната становится центром семейных встреч и торжеств, предоставляя достаточно места для комфортного отдыха и общения.
Гостиная плавно переходит в большую кухню с отдельной столовой зоной, где каждый ужин превращается в настоящее событие. Просторная кухня оборудована всем необходимым для приготовления кулинарных шедевров, а обеденная зона становится местом, где собирается вся семья, делясь историями и смехом. Из столовой зоны предусмотрен выход на уютное патио, где можно наслаждаться свежим воздухом, проводить вечера с друзьями или устраивать барбекю.
На первом этаже также расположена гостевая спальня, что делает дом удобным для приема гостей. Рядом с ней находится отдельный санузел, обеспечивающий комфорт и приватность для ваших друзей и родственников. Плюсом является помещение котельной с отдельным входом через крыльцо, что делает управление домом более удобным и практичным.
Поднимаясь на второй этаж, вы попадаете в шикарную мастер спальню, которая стала оазисом уюта и спокойствия. Эта спальня оборудована собственной гардеробной и большим санузлом, а также имеет выход на балкон, где можно наслаждаться утренним кофе или вечерними закатами. Кроме того, на этаже расположены две просторные спальни для детей или гостей, каждая из которых предлагает комфортные условия для отдыха и учебы.
Проект двухэтажного каркасного дома «Эльза» — это не просто строение, а пространство, где каждая деталь продумана для создания уюта и гармонии. Он станет идеальным местом для большой семьи, обеспечивая комфорт, стиль и функциональность, что делает его настоящим домом для счастливых моментов и воспоминаний.
О ПРОЕКТЕ
Анна Светлова
Архитектор проекта
План 2 этажа
План 1 этажа
А давайте создадим индивидуальные планировки на основе ваших пожеланий?
Назначьте встречу с одним из наших архитекторов прямо сейчас
Назначьте встречу с одним из наших архитекторов прямо сейчас
Не подходит планировка дома?
ПЛАНИРОВОЧНЫЕ РЕШЕНИЯ ПРОЕКТА
ПЛАНИРОВОЧНЫЕ РЕШЕНИЯ ПРОЕКТА
Имитация бруса / гипсокартон
Электрика, вода, канализация, отопление (электрические конвекторы), вентиляция (санузел, кухня)
Кварцвинил, монтаж плинтусов
Имитация бруса под покраску / стеновые панели / обои
Монтаж натяжных потолков под ключ
Фанера
ПВХ профиль 70, двойной стеклопакет
Пол, стены, потолок
Ветро-влагозащита, контробрешетка, шаговая обрешетка, кровельное покрытие металлочерепица
Каркас, супердиффузионная мембрана, сетка от грызунов
Железобетонные сваи
(цоколь, фасад, лобовые, доборные элементы, водосточная система, подшив, снегоудержание, откосы, отливы, наличники, крыльца, террасы)
| Фундамент | |
| Возведение конструкции | |
| Перекрытие пола | |
| Перекрытие потолка | |
| Стропильная система | |
| Кровля под ключ | |
| Утепление конструктива | |
| Окна, входная дверь | |
| Черновая отделка пола | |
| Внешняя отделка | |
| Внутренняя отделка стен | |
| Инженерные сети | |
| Финишное покрытие пола | |
| Финишное покрытие стен | |
| Финишное покрытие потолка | |
КОМПЛЕКТАЦИИ ДОМА
| «Холодный контур» | «Теплый контур» | «White Box» | «Под ключ» |
|---|---|---|---|
| | |||
| | |||
| | |||
| | | ||
| | | ||
| | | | |
| | | | |
| | | | |
| | | | |
| Цена: 6,30 млн. руб. | Цена: 10,51 млн. руб. | Цена: 14,69 млн. руб. | Цена: 18,06 млн. руб. |
КОМПЛЕКТАЦИИ ДОМА
ПОЛУЧИТЕ БЕСПЛАТНУЮ КОНСУЛЬТАЦИЮ
ОТ ЭКСПЕРТА ПО СТРОИТЕЛЬСТВУ
ОТ ЭКСПЕРТА ПО СТРОИТЕЛЬСТВУ
ВАРИАНТЫ ВНУТРЕННЕЙ ОТДЕЛКИ ДОМА
*Доступно более 34 вариантов внутренней отделки. Подберем ту конфигурацию, которая понравится вам и вашей семье
от 3-х месяцев
10 лет
10 лет
12 лет
12 лет
от 3-х месяцев
Срок строительства под ключ
Официальной гарантии
Официальной гарантии
На рынке строительства домов
На рынке строительства домов
Срок строительства под ключ
В ЦИФРАХ:
О КОМПАНИИ
О КОМПАНИИ В ЦИФРАХ:
ООО «СТРОИМ»
ОГРН: 1253700008836
ИНН: 3700035290
КПП: 370001001
ОГРН: 1253700008836
ИНН: 3700035290
КПП: 370001001
Работаем сейчас, звоните
Любая информация, представленная на данном сайте, носит исключительно информационный характер и ни при каких условиях не является публичной офертой, определяемой положениями статьи 437 ГК РФ.
Отправляя сведения через любую электронную форму на этом сайте,
вы даете согласие на обработку ваших персональных данных.
Отправляя сведения через любую электронную форму на этом сайте,
вы даете согласие на обработку ваших персональных данных.
© 2026. Все права защищены.
© 2026. Все права защищены.
Любая информация, представленная на данном сайте, носит исключительно
информационный характер и ни при каких условиях не является публичной офертой, определяемой положениями статьи 437 ГК РФ.
Отправляя сведения через любую электронную форму на этом сайте,
вы даете согласие на обработку ваших персональных данных.
информационный характер и ни при каких условиях не является публичной офертой, определяемой положениями статьи 437 ГК РФ.
Отправляя сведения через любую электронную форму на этом сайте,
вы даете согласие на обработку ваших персональных данных.
|
Работаем сейчас, звоните