Каркасный дом под ключ
133 м²
ЕЛИСЕЙ
ЕЛИСЕЙ – ПРОЕКТ КАРКАСНОГО ДОМА
1 этаж
3
133 м²
Количество этажей
Кол-во спален
Общая жилая площадь
«Елисей» - Одноэтажный каркасный дом с террасой.
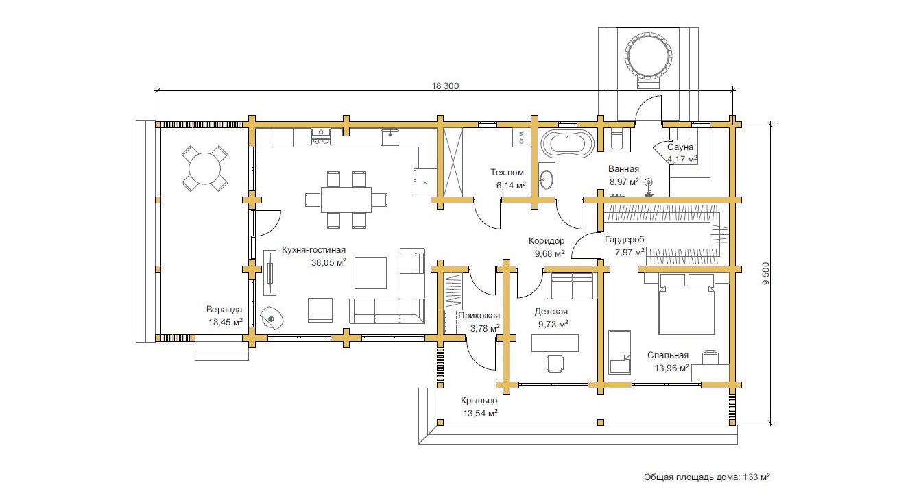
Готовый проект под ключ Проект «Елисей» это стильный современный одноэтажный каркасный дом, который идеально подойдет для небольшой семьи из 3-4 человек, либо как инвестиция в В2В проект для аренды и получения дополнительного дохода. Среди серийных проектов одноэтажных каркасных домов эта продуманная планировка выгодно отличается своей комплектацией: просторная кухня-гостиная, 2 спальни, большая гардеробная комната и сердце этого дома, SPA блок с сауной и фурако на открытой веранде.
Для отдыха с прекрасными видами : предусмотрена застекленная веранда (терраса).
Для удобства и эстетики : отдельное техническое помещение для размещения оборудования и хранения хоз. вещей.
Этот стильный одноэтажный каркасный дом для проживания создан, чтобы вы смогли в полной мере наслаждаться всеми прелестями загородной жизни, а SPA блок не только приятен, но и полезен для здоровья. Каркасная технология обеспечивает короткие сроки строительства и максимальную теплоэффективность дома, это дает приятный бонус в виде низких затрат на отопление, что делает проект не только комфортным, но и экономически выгодным решением.
Готовый проект под ключ Проект «Елисей» это стильный современный одноэтажный каркасный дом, который идеально подойдет для небольшой семьи из 3-4 человек, либо как инвестиция в В2В проект для аренды и получения дополнительного дохода. Среди серийных проектов одноэтажных каркасных домов эта продуманная планировка выгодно отличается своей комплектацией: просторная кухня-гостиная, 2 спальни, большая гардеробная комната и сердце этого дома, SPA блок с сауной и фурако на открытой веранде.
Для отдыха с прекрасными видами : предусмотрена застекленная веранда (терраса).
Для удобства и эстетики : отдельное техническое помещение для размещения оборудования и хранения хоз. вещей.
Этот стильный одноэтажный каркасный дом для проживания создан, чтобы вы смогли в полной мере наслаждаться всеми прелестями загородной жизни, а SPA блок не только приятен, но и полезен для здоровья. Каркасная технология обеспечивает короткие сроки строительства и максимальную теплоэффективность дома, это дает приятный бонус в виде низких затрат на отопление, что делает проект не только комфортным, но и экономически выгодным решением.
О ПРОЕКТЕ
Анна Светлова
Архитектор проекта
А давайте создадим индивидуальные планировки на основе ваших пожеланий?
Назначьте встречу с одним из наших архитекторов прямо сейчас
Назначьте встречу с одним из наших архитекторов прямо сейчас
Не подходит планировка дома?
ПЛАНИРОВОЧНЫЕ РЕШЕНИЯ ПРОЕКТА
ПЛАНИРОВОЧНЫЕ РЕШЕНИЯ ПРОЕКТА
Имитация бруса / гипсокартон
Электрика, вода, канализация, отопление (электрические конвекторы), вентиляция (санузел, кухня)
Кварцвинил, монтаж плинтусов
Имитация бруса под покраску / стеновые панели / обои
Монтаж натяжных потолков под ключ
Фанера
ПВХ профиль 70, двойной стеклопакет
Пол, стены, потолок
Ветро-влагозащита, контробрешетка, шаговая обрешетка, кровельное покрытие металлочерепица
Каркас, супердиффузионная мембрана, сетка от грызунов
Железобетонные сваи
(цоколь, фасад, лобовые, доборные элементы, водосточная система, подшив, снегоудержание, откосы, отливы, наличники, крыльца, террасы)
| Фундамент | |
| Возведение конструкции | |
| Перекрытие пола | |
| Перекрытие потолка | |
| Стропильная система | |
| Кровля под ключ | |
| Утепление конструктива | |
| Окна, входная дверь | |
| Черновая отделка пола | |
| Внешняя отделка | |
| Внутренняя отделка стен | |
| Инженерные сети | |
| Финишное покрытие пола | |
| Финишное покрытие стен | |
| Финишное покрытие потолка | |
КОМПЛЕКТАЦИИ ДОМА
| «Холодный контур» | «Теплый контур» | «White Box» | «Под ключ» |
|---|---|---|---|
| | |||
| | |||
| | |||
| | | ||
| | | ||
| | | | |
| | | | |
| | | | |
| | | | |
| Цена: 3,47 млн. руб. | Цена: 5,78 млн. руб. | Цена: 8,08 млн. руб. | Цена: 9,94 млн. руб. |
КОМПЛЕКТАЦИИ ДОМА
ПОЛУЧИТЕ БЕСПЛАТНУЮ КОНСУЛЬТАЦИЮ
ОТ ЭКСПЕРТА ПО СТРОИТЕЛЬСТВУ
ОТ ЭКСПЕРТА ПО СТРОИТЕЛЬСТВУ
ВАРИАНТЫ ВНУТРЕННЕЙ ОТДЕЛКИ ДОМА
*Доступно более 34 вариантов внутренней отделки. Подберем ту конфигурацию, которая понравится вам и вашей семье
от 3-х месяцев
10 лет
10 лет
12 лет
12 лет
от 3-х месяцев
Срок строительства под ключ
Официальной гарантии
Официальной гарантии
На рынке строительства домов
На рынке строительства домов
Срок строительства под ключ
В ЦИФРАХ:
О КОМПАНИИ
О КОМПАНИИ В ЦИФРАХ:
ООО «СТРОИМ»
ОГРН: 1253700008836
ИНН: 3700035290
КПП: 370001001
ОГРН: 1253700008836
ИНН: 3700035290
КПП: 370001001
Работаем сейчас, звоните
Любая информация, представленная на данном сайте, носит исключительно информационный характер и ни при каких условиях не является публичной офертой, определяемой положениями статьи 437 ГК РФ.
Отправляя сведения через любую электронную форму на этом сайте,
вы даете согласие на обработку ваших персональных данных.
Отправляя сведения через любую электронную форму на этом сайте,
вы даете согласие на обработку ваших персональных данных.
© 2026. Все права защищены.
© 2026. Все права защищены.
Любая информация, представленная на данном сайте, носит исключительно
информационный характер и ни при каких условиях не является публичной офертой, определяемой положениями статьи 437 ГК РФ.
Отправляя сведения через любую электронную форму на этом сайте,
вы даете согласие на обработку ваших персональных данных.
информационный характер и ни при каких условиях не является публичной офертой, определяемой положениями статьи 437 ГК РФ.
Отправляя сведения через любую электронную форму на этом сайте,
вы даете согласие на обработку ваших персональных данных.
|
Работаем сейчас, звоните